一、農業氣象站簡介
農業氣象站是針農業生態環境實時監控以及和農業生產活動相關的環境監測、農田氣象環境調控等需求設計的一款綜合小型自動氣象監測系統,農業氣象站又稱小型農業自動氣象站。SJ-NQ8農業氣象站是一款高度集成、低功耗、可快速安裝、便于野外監測使用的高精度氣象觀測設備。
農業氣象站由氣象傳感器,采集器,太陽能供電系統,立桿支架,云平臺五部分組成。免調試,可快速布置,廣泛運用于氣象、農業、林業、科學考察等領域。
二、農業氣象站產品特點
1.低功耗采集器:靜態功耗小于50uA
2.標配GPRS聯網、支持擴展藍牙、有線傳輸
3.七寸安卓觸屏,版本:4.4.2、四核Cortex?-A7,512M/4G
4.支持modbus485傳感器擴展
5.太陽能充電管理MPPT自動功率點跟蹤
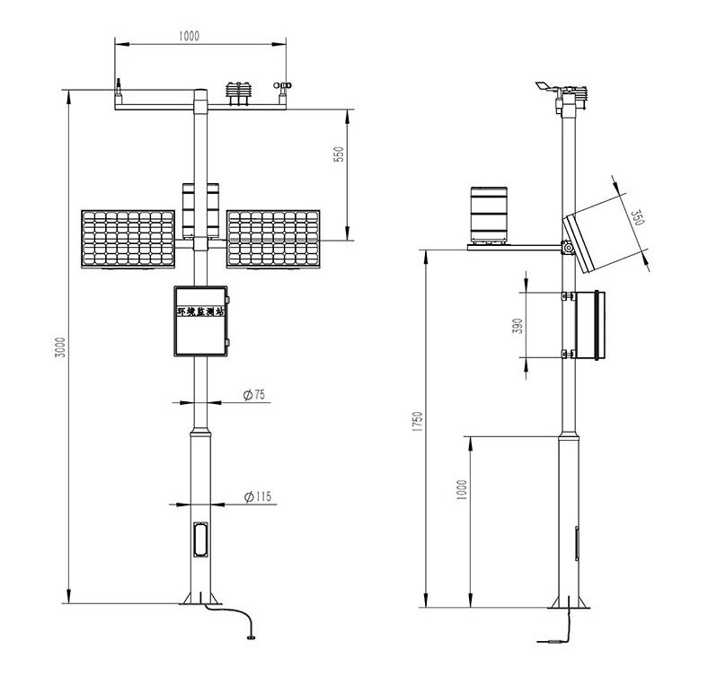
6.三米碳鋼支架,兩節螺紋旋接
7.短信報警,超限后向指定的手機上發送短信
8.ABS材質防護箱,耐腐蝕、抗氧化,防水等級IP66
三、農業氣象站技術參數
1.采集器供電接口:GX-12-3P插頭,輸入電壓5V,帶RS232輸出Json數據格式,采集器供電:DC5V±0.5V峰值電流1A,
2.傳感器modbus、485接口:GX-12-4P插頭,輸出供電電壓12V/1A,設備配置接口:GX-12-4P插頭,輸入電壓5V
3.太陽能供電、配置鉛酸電池,可選配30W 20AH/50W 20AH/100W 100AH.充電控制器:150W,MPPT自動功率點跟蹤,效率提高20%
4.數據上傳間隔:1分鐘-1000分鐘可調
5.屏幕尺寸:1024*600 RGB LCD
6.部分傳感器參數
名稱 | 測量范圍 | 分 辨 率 | 準 確 度 |
風速 | 0~30m/s | 0.01m/s | ±(0.1+0.03V)m/s |
風向 | 0~360°(16方向) | 1/16 | <3°(>1.0m/s) |
空氣溫度 | -40-80℃ | 0.1℃ | ±0.3℃(25℃) |
空氣濕度 | 0-100%RH | 0.10% | ±3%RH |
大氣壓力 | 30-110Kpa | 0.01Kpa | ±0.02Kpa(相對) |
雨量 | ≦4mm/min | 0.01mm | ±0.2mm |
土壤溫度 | -50~+80℃ | 0.1℃ | ≤±0.2℃ |
土壤濕度 | 0~100% | 0.1% | ±2% |
四、農業氣象站云平臺
1.CS架構軟件平臺,支持手機、PC瀏覽器直接觀測、無需額外安裝軟件。
2.支持多帳號、多設備登錄
3.支持實時數據展示與歷史數據展示儀表板
4.云服務器、云數據存儲,穩定可靠,易于擴展,負載均衡。
5.支持短信報警及閾值設置
6.支持地圖顯示、查看設備信息。
7.支持數據曲線分析
8.支持數據導出表格形式
9.支持數據轉發,HJ-212協議,TCP轉發,http協議等。
10.支持數據后處理功能
11.支持外置運行javascript腳本
五、農業氣象站產品尺寸圖
六、農業氣象站產品結構圖
