一、農業自動氣象站產品簡介
山東水境傳感科技有限公司是一家集水質傳感器、水質監測站、水文監測站、雨量監測站、農業氣象站等設備研發、生產、銷售、服務與一體的大型綜合性企業。公司自主研發的農業自動氣象站又稱農業氣象站、農田氣象站、農業氣象監測站、農業環境監測站,是一款針對農業生態環境監測與農業生活環境監測設計的一款自動氣象站,可對農田環境參數進行在線監測并實時上傳至云平臺。
農業自動氣象站是一款高度集成、低功耗、可快速安裝、便于野外監測使用的高精度氣象觀測設備。
該設備由氣象傳感器,采集器,太陽能供電系統,立桿支架,云平臺五部分組成。免調試,可快速布置,廣泛運用于氣象、農業、林業、科學考察等領域。
二、農業自動氣象站產品特點
1.低功耗采集器:靜態功耗小于50uA
2.標配GPRS聯網、支持擴展藍牙、有線傳輸
3.七寸安卓觸屏,版本:4.4.2、四核Cortex?-A7,512M/4G
4.支持modbus485傳感器擴展
5.太陽能充電管理MPPT自動功率點跟蹤
6.三米碳鋼支架,兩節螺紋旋接
7.短信報警,超限后向指定的手機上發送短信
8.ABS材質防護箱,耐腐蝕、抗氧化,防水等級IP66
三、農業自動氣象站技術參數
1.采集器供電接口:GX-12-3P插頭,輸入電壓5V,帶RS232輸出Json數據格式,采集器供電:DC5V±0.5V峰值電流1A,
2.傳感器modbus、485接口:GX-12-4P插頭,輸出供電電壓12V/1A,設備配置接口:GX-12-4P插頭,輸入電壓5V
3.太陽能供電、配置鉛酸電池,可選配30W 20AH/50W 20AH/100W 100AH.充電控制器:150W,MPPT自動功率點跟蹤,效率提高20%
4.數據上傳間隔:1分鐘-1000分鐘可調
5.屏幕尺寸:1024*600 RGB LCD
6.部分傳感器參數
| 名 稱 | 測量范圍 | 分 辨 率 | 準 確 度 |
| 風 速 | 0~30m/s | 0.01m/s | ±(0.1+0.03V)m/s |
| 風 向 | 0~360°(16方向) | 1/16 | <3°(>1.0m/s) |
| 空氣溫度 | -40-80℃ | 0.1℃ | ±0.3℃(25℃) |
| 空氣濕度 | 0-100%RH | 0.10% | ±3%RH |
| 大氣壓力 | 30-110Kpa | 0.01Kpa | ±0.02Kpa(相對) |
| 雨量 | ≦4mm/min | 0.01mm | ±0.2mm |
| 光照 | 0-20W LUX | 1lux | 5% |
| 二氧化碳 | 500-5000PPM | 1PPM | ±50PPM±讀數的3% |
| 土壤溫度 | -40~80℃ | 0.01℃ | ±0.5℃ |
| 土壤濕度 | 0-100% | 0.01% | ±3% |
| 土壤電導率EC | 0-20000us/cm | 10us/cm | ±5% |
| 土壤PH(電極法) | 0-14 | 0.01 | ±0.1PH,±0.1℃ |
| 土壤氮磷鉀 | 0~1999mg/kg | 1 mg/kg | ±2% |
| 土壤蒸發量 | 0~75mm | 0.1mm | ±1% |
四、農業自動氣象站云平臺
1.CS架構軟件平臺,支持手機、PC瀏覽器直接觀測、無需額外安裝軟件。
2.支持多帳號、多設備登錄
3.支持實時數據展示與歷史數據展示儀表板
4.云服務器、云數據存儲,穩定可靠,易于擴展,負載均衡。
5.支持短信報警及閾值設置
6.支持地圖顯示、查看設備信息。
7.支持數據曲線分析
8.支持數據導出表格形式
9.支持數據轉發,HJ-212協議,TCP轉發,http協議等。
10.支持數據后處理功能
11.支持外置運行javascript腳本
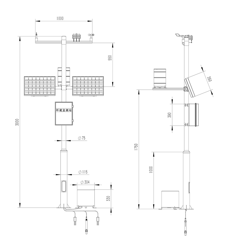
五、農業自動氣象站產品尺寸圖

六、農業自動氣象站產品結構圖
